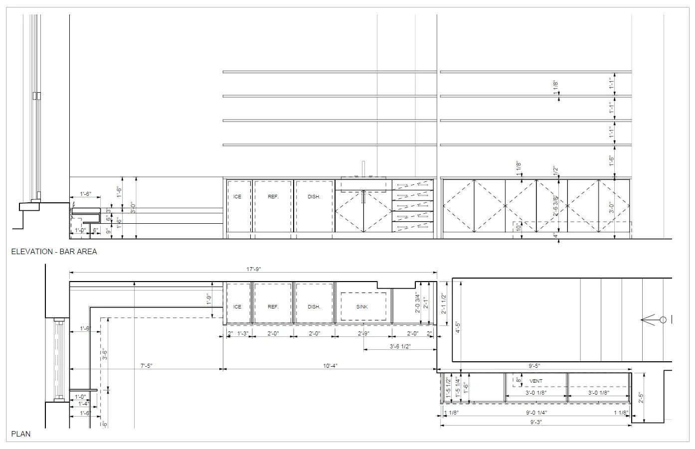
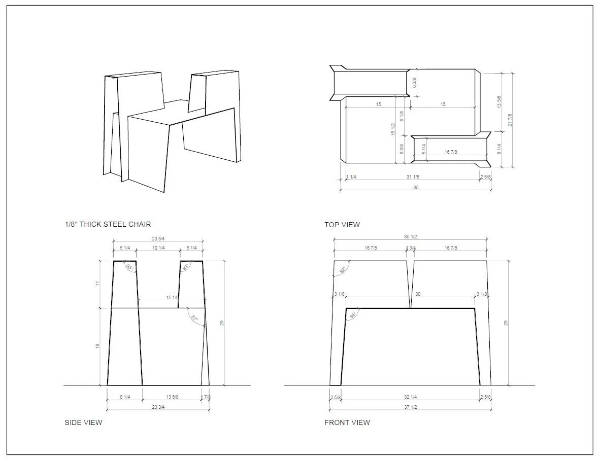
SHOP DRAWINGS
We offer a comprehensive range of drawing services tailored to meet your project’s unique needs, from initial concepts to intricate details. Whether you require a basic layout to visualize the spatial arrangement or detailed furniture drawings to refine design elements, our team is adept at delivering precise and functional solutions. Our expertise extends to custom millwork shop drawings, where we translate your design vision into meticulous, high-quality schematics that ensure seamless fabrication and installation. Each drawing is crafted with meticulous attention to detail, providing clarity and accuracy that guide every stage of your project, ensuring both aesthetic appeal and practical functionality.


