MILLWORK SHOP DRAWINGS

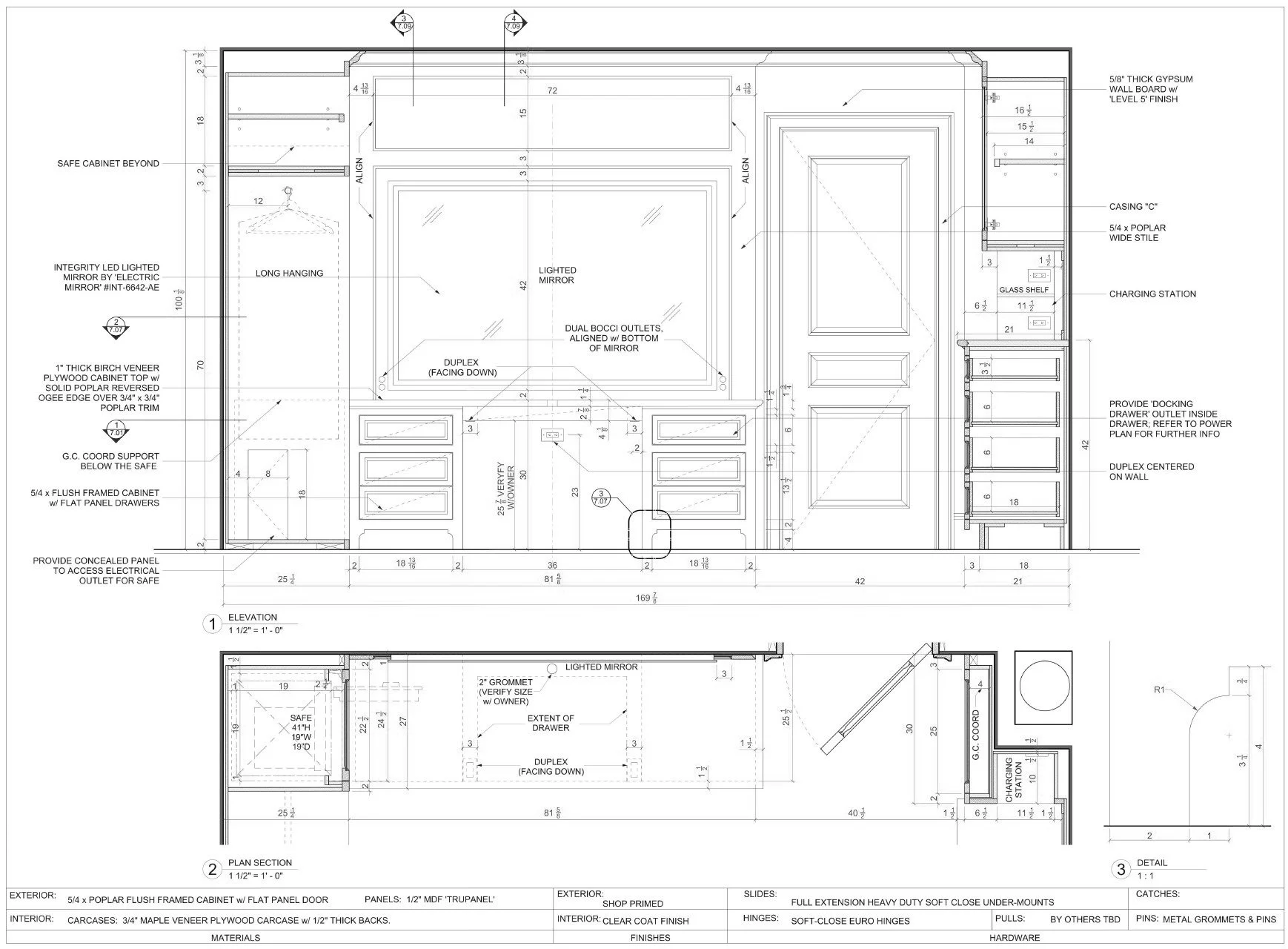
Working on a variety of custom millwork projects to produce precise, detailed drawings tailored for the fabrication and installation of custom cabinetry and millwork. This service includes comprehensive plans that specify every element of the design, from cabinetry dimensions and material specifications to hardware placement and finish details.

By translating design concepts into highly accurate, production-ready documents, we ensure seamless communication between designers, contractors, and fabricators, helping to bring your vision to life with precision and craftsmanship. Whether it's for a residential or commercial space, our shop drawings are crafted to facilitate efficient construction, ensuring a flawless fit and finish.

Shown here is a custom kitchen project that was created in collaboration with Byrne Woodworking.

Previous
Previous

Cottage House

Next
Next

Bar Stand